リビオ世田谷松原

26.8万円 管理/共益費 -

東京都世田谷区松原3丁目

京王線「下高井戸」駅徒歩4分

東急世田谷線「下高井戸」駅徒歩4分

京王線「明大前」駅徒歩12分

価格
26.8万円 管理/共益費 -
間取り/面積
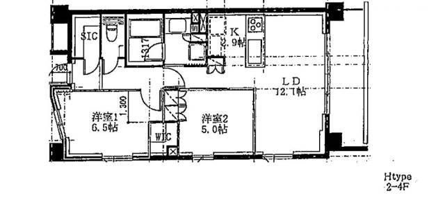
2LDK/61.38㎡
所在地
東京都世田谷区松原3丁目
築年
2020年3月(築5年)
駐車
近隣
交通

京王線下高井戸」駅 徒歩4分

東急世田谷線下高井戸」駅 徒歩4分

京王線明大前」駅 徒歩12分

リビオ世田谷松原の基本情報

物件名
リビオ世田谷松原
価格
26.8万円
管理/共益費
-
築年月
2020年3月(築5年)
総戸数
-
所在地
東京都世田谷区松原3丁目
交通

京王線下高井戸」駅 徒歩4分

東急世田谷線下高井戸」駅 徒歩4分

京王線明大前」駅 徒歩12分

リビオ世田谷松原の詳細情報

設備条件
  • エレベーター
  • 敷地内ごみ置き場
  • CATV
  • インターネット対応
  • オートロック
  • 宅配ボックス
  • 24時間ゴミ出し可
設備(その他)
    -
駐車場/月額
近隣/33,000円 200m
用途地域
-
戸数
- / -
取引態様
一般媒介

リビオ世田谷松原で募集中の物件

  1. 4階

    18.56坪 (61.38㎡)

    26.8万円(14439.66円/坪)

リビオ世田谷松原

お気軽にお問い合わせください

無料お問い合わせ

株式会社R不動産

03-6257-2266

9:00〜20:00

(休:無し)